宮城・仙台で無垢材・自然素材自由設計の家づくり

森のめぐみ工房

  • Instagram
  • Youtube
商品ラインナップ

しんみんかシリーズ: しんみんか スタンダード

まるでログハウスのような
木のぬくもり

しんみんか スタンダード

オーガニックで家族により優しい暮らしと空間を

私たちが木のある住空間を心地よく感じるのは、暮らしの中で育まれた感性です。
柔らかな手触りや温かな風合い。どれも木の魅力です。
森のめぐみ工房の「Shinminka(しんみんか)」は、お客様からの「もっと木を使った家が欲しい」という声から生まれました。木材をふんだんに使用しながらも「杜の家」と同様に高性能な住宅となる「Shinminka(しんみんか)」シリーズは、木に包まれ末永く暮らすことができ、お客様の理想の家づくりを実現します。

しんみんか スタンダード
しんみんか スタンダード
  • 宮城県産の木材をふんだんに使用
    「木材へのこだわり」

    地域の無垢材を使用することで、生産エネルギーを低減。 地域の産業経済活性化や地域おこしに貢献します。 環境にもやさしく、まさにSDGs!

    しんみんか スタンダード
  • 夏は涼しく、冬は暖かい

    木には調質効果があります。夏はベタつかず、サラリとした踏み心地で、冬は木の温もりでとても暖かい。木は、熱伝導率が低いので触れても人の体温を奪いにくい性質があります。年中、素足で歩き回ることが可能。

    しんみんか スタンダード
  • 子どもの成長やライフスタイルの変化にも対応

    広々とした大空間を可能にする、スケルトン・インフィル住宅。「でき杉パーテーション」は家族の成長や、ライフスタイルの変化に伴い、間仕切り変更を可能にします。

    しんみんか スタンダード
  • 地震に強い耐震性能

    骨格の強さで耐震性能も強化。2011年3月11日の東日本大震災、2022年3月の大地震において、建設された全棟が倒壊、損傷を免れました。その耐震性能の高さを実証しました。

    しんみんか スタンダード
  • 末永く暮らせる「長期優良住宅対応」

    長期優良住宅対応とは、耐久性や耐震性に優れ、長期にわたり快適な住生活をおくるために必要な基準をクリアした住宅のことです。耐震性、省エネ性、維持管理、バリアフリー性などに優れます。

    しんみんか スタンダード

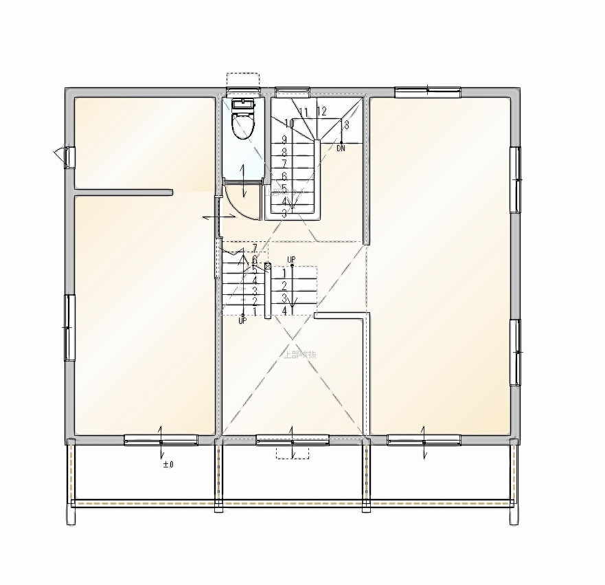
間取りプラン

  • 1階

    しんみんか スタンダード
  • 2階

    しんみんか スタンダード
  • ロフト

    しんみんか スタンダード

カタログ・資料請求はこちら

WEB上では公開しきれないプランと実際のお客様の声をまとめました。まずは、事例を是非大切な方とご一緒にご覧いただき、理想の家づくりを進めるきっかけにしていただければと思います。

お申し込みはこちら

見学ご希望はこちら

ショールーム・モデルハウス公開、施主様邸の完成見学会や各種イベントを常時行っておりますので、お気軽にご来場くださいませ。

来場のご予約はこちら

ラインナップ– Lineup –

  • おうちができるまで
  • ココがイイネ森のめぐみ工房

お知らせ&イベント情報

  • 私達の想い
  • 森のめぐみ工房なんでも相談会

家づくりお役立ちコラム

  • 半規格住宅「杜の家」
  • とことんこだわりたい「完全フリープラン」
  • 森めぐのリフォーム「ホームメイキング」
  • ベストプランをお出しします!プラン提案&お見積りをご希望のお客様へ
  • モデルハウスをチェック!お家づくりのイメージをつかみたいお客様へ
  • お役立ち情報掲載中!家づくりの予習をしたいお客様へ
  • 会社概要
  • 採用情報
  • 建売住宅を探す
  • 土地・分譲地を探す
  • ベストバリューホーム
  • 森めぐZEH