宮城・仙台で無垢材・自然素材自由設計の家づくり

森のめぐみ工房

  • Instagram
  • Youtube
商品ラインナップ

社の家シリーズ: 杜の家 スタンダード + 増築プラン

杜の家スタンダードの間取りにプラスαのスペースを追加する、コストパフォーマンスに優れたタイプです。

杜の家 スタンダード + 増築プラン

半規格住宅[杜の家]シリーズはスケルトン・インフィル工法

土地形状や接道の方位によって玄関や水まわりの位置、お部屋の広さを変えることができます。
[杜の家]シリーズはスケルトン・インフィルという〝建物を構造体(スケルトン)と、内外装や間
取り(インフィル)に分けて設計する工法〟で作っています。
 耐久性の高い構造体なので、自由に間取り等のインフィル部分の変更を行う
ことができます。家族構成の変化やライフスタイルの変化などに対応して、
〝満足が末永く続く家〟を可能にしました。

  • まるごと一棟地域材 ~地産地消~

    当社では自社グループで丸太の皮むきから製材、乾燥、加工までを一貫して行っています。輸送にかかる環境負荷や経済的付加といった生産コストを抑えながら、安心品質の木材を使用してお家づくりをしています。

    杜の家 スタンダード + 増築プラン
  • 燻煙乾燥無垢材

    環境負荷の少ない木材乾燥による「燻煙乾燥木材」の生産にも取り組んでいます。加工工場で発生した端材やおがくずを燃料(バイオマス)として再使用。森の恵みを最後まで大切に活かしています。

    杜の家 スタンダード + 増築プラン
  • あたたかくて優しい断熱材「セルロースファイバー」

    外周壁に標準採用している、新聞古紙のリサイクルから生まれた自然素材「セルロースファイバー」は、身体や環境にやさしい断熱材。断熱・防露・調湿・防音に抜群の効果を発揮し、火災などの災害にも強く、人と家を守ります。

    杜の家 スタンダード + 増築プラン
  • 長期優良住宅品質

    杜の家シリーズは標準仕様で長期優良住宅に対応しています。耐震等級3(最高等級)・断熱性能等級5(上位等級)・一次エネルギー消費量等級6(最高等級)・劣化対策等級3(最高等級)・維持管理対策等級3(最高等級)
    耐震力は、建築基準の1.5倍。2011年3月11日の東日本大震災・2022年3月16日の大地震において[杜の家]は建築された全棟が倒壊と損傷を免れ、その耐震性能の高さを実証しました。

    杜の家 スタンダード + 増築プラン
  • スケルトンインフィル工法

    建物を構造体(スケルトン)と、内外装や間取り(インフィル)に分けて設計する工法です。杜の家オリジナル無垢杉材パーテーション「でき杉くん」で間取りが変わる!ライフスタイルが変わる!

    杜の家 スタンダード + 増築プラン

間取りプラン

  • 1階

    杜の家 スタンダード + 増築プラン
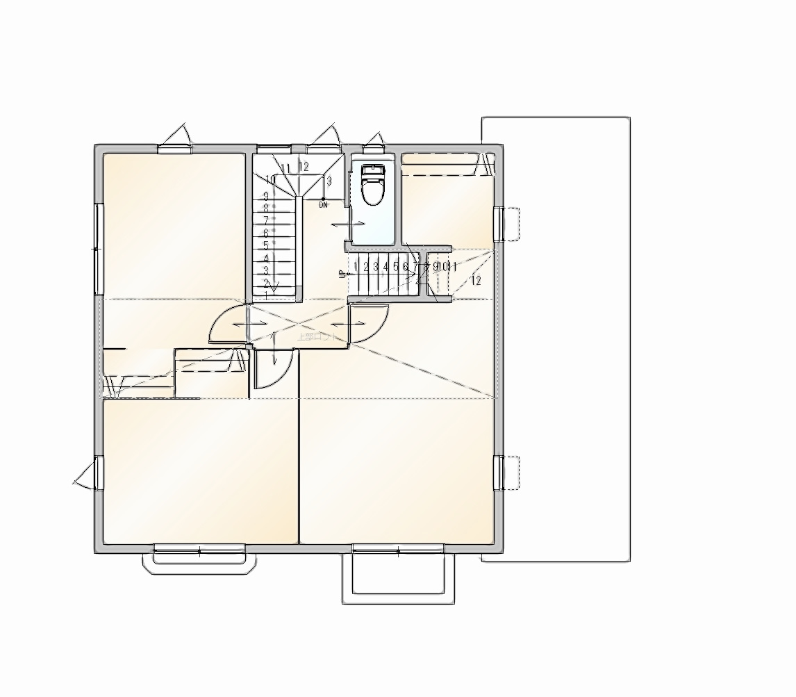
  • 2階

    杜の家 スタンダード + 増築プラン
  • ロフト

    杜の家 スタンダード + 増築プラン

カタログ・資料請求はこちら

WEB上では公開しきれないプランと実際のお客様の声をまとめました。まずは、事例を是非大切な方とご一緒にご覧いただき、理想の家づくりを進めるきっかけにしていただければと思います。

お申し込みはこちら

見学ご希望はこちら

ショールーム・モデルハウス公開、施主様邸の完成見学会や各種イベントを常時行っておりますので、お気軽にご来場くださいませ。

来場のご予約はこちら

ラインナップ– Lineup –

  • おうちができるまで
  • ココがイイネ森のめぐみ工房

お知らせ&イベント情報

  • 私達の想い
  • 森のめぐみ工房なんでも相談会

家づくりお役立ちコラム

  • 半規格住宅「杜の家」
  • とことんこだわりたい「完全フリープラン」
  • 森めぐのリフォーム「ホームメイキング」
  • ベストプランをお出しします!プラン提案&お見積りをご希望のお客様へ
  • モデルハウスをチェック!お家づくりのイメージをつかみたいお客様へ
  • お役立ち情報掲載中!家づくりの予習をしたいお客様へ
  • 会社概要
  • 採用情報
  • 建売住宅を探す
  • 土地・分譲地を探す
  • ベストバリューホーム
  • 森めぐZEH